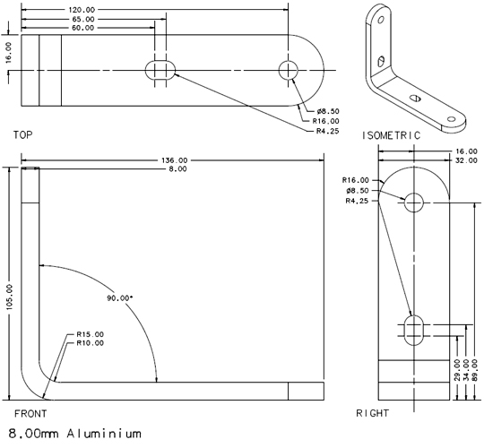
WB1 - L Bracket  Designed to mount Rayled illuminators to walls to provide full pan/tilt adjustment when used with AI circular bracket. 
 The L Bracket is a small L shaped bracket which provides up/down and left/right adjustment when used with the standard bracketry on our illuminators.  
